Bilocale in vendita

Roma, Via Ermenegildo Frediani - Garbatella
€ 265.000
2 locali 2 locali
60 Mq 60 Mq
1 bagno 1 bagno

Bilocale in vendita

Roma, Via Ermenegildo Frediani - Garbatella

Descrizione annuncio

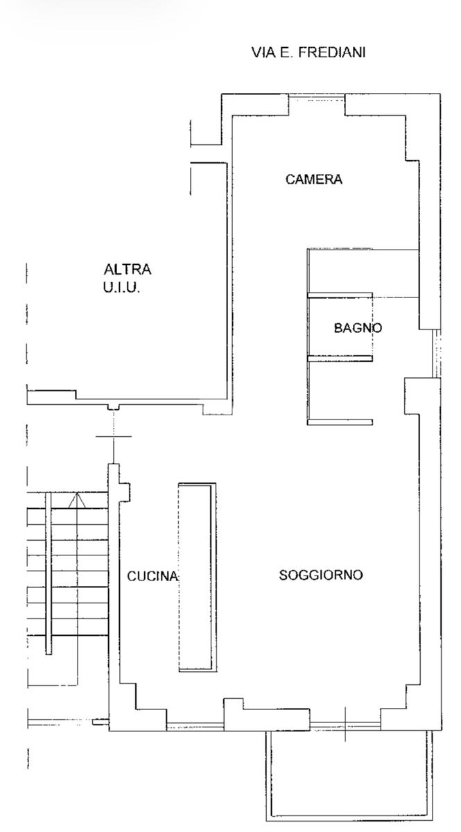
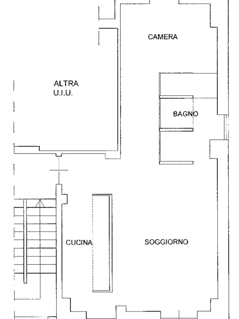
Garbatella Via Ermenegildo Frediani Bilocale di 60 mq

In una delle zone più richieste e servite di Roma, a breve distanza dalla fermata Metro Garbatella, proponiamo in vendita un luminoso bilocale di 60 mq posto al quarto piano di uno stabile in buone condizioni generali.

L’immobile è composto da ingresso, soggiorno con angolo cottura, ampia camera da letto e bagno suddiviso a scompartimenti. Completala proprietà un balcone e una cantina


La pianta regolare e la disposizione degli ambienti consentono un’ampia possibilità di personalizzazione degli spazi interni, rendendo l’appartamento adatto a diverse esigenze abitative.

La posizione strategica, la vicinanza ai principali servizi e collegamenti rendono la soluzione ideale sia come abitazione principale sia come opportunità di investimento.

Perchè scegliere questo appartamento

-ottimo stato interno

- piano alto

- vicinanza ai principali servizi

-balcone e cantina

Mostra tutto

Nelle vicinanze

Trasporto pubblico Trasporto pubblico
Garbatella
Garbatella
710 m
Piramide
Piramide
1,1 Km
stazione di Roma Ostiense
stazione di Roma Ostiense
530 m
Roma Porta San Paolo
Roma Porta San Paolo
1,1 Km
Piazzale Ostiense
Piazzale Ostiense
1,2 Km
Ricariche auto elettriche Ricariche auto elettriche
Roma Capitale - Dipartimento Mobilità e Trasporti | EnelX
90 m
Eneldrive Usodimare
280 m
Roma Nicolò da Pistoia | EnelX
380 m
Roma Ministero dell'Ambiente | EnelX
390 m
Garage Cristoforo Colombo | EnelX
510 m
Scuole Scuole
Liceo classico e scientifico Socrate
290 m
Scuola dell'Infanzia Casa dei Bimbi
420 m
Libera Università del Cinema
730 m
Scuola primaria Cesare Battisti
780 m
Istituto Cesare Baronio
840 m
Farmacia Farmacia
Farmacia
130 m
Farmacia Angelini
590 m
Farmacia a Garbatella Gimigliano
820 m
Farmacia Santa Rita
940 m
Farmacia Ostiense
980 m
Ospedali Ospedali
direzione sanità RFI Gruppo Ferrovie dello Stato
350 m
Ospedale CTO Andrea Alesini
1,2 Km
Ospedale Pediatrico Bambino Gesù - Sede di San Paolo
1,8 Km
Ospedale Britannico
1,8 Km
Nuova Clinica Annunziatella
1,9 Km
Supermercati Supermercati
Naturasì
180 m
Pam local
210 m
Coop
370 m
Todis
440 m
Carrefour Market
440 m
Negozi Negozi
Fulò
140 m
Negozi
170 m
Baby Forno
430 m
Marisa
450 m
Sognando
490 m
Bar Bar
Caffè La Gioia Del Gusto
110 m
Privilegio
180 m
Bar
220 m
Quinto's
260 m
Filadelfia bar
270 m
Ristoranti Ristoranti
Ristoranti
180 m
Akasaka
240 m
Ristorante Sedicidiciotto
260 m
La Torricella 2
320 m
La Nuova Cantinetta
360 m
Mostra tutto

Caratteristiche

Rif.:
61131613
Piano:
4 di 8 con ascensore (Piano alto)
Balconi:
1
Camere da letto:
2
Arredamento:
Completo
Condizionamento:
Autonomo
Mostra tutto
Prezzo Prezzo
€ 265.000
Rata mutuo Rata mutuo
€ 1.251 / mese
Proponi il tuo prezzoProponi il tuo prezzo

Classe Energetica

G
G
G
G
G
G
G
G
G
EP globale non rinnovabile:
175.00 kW h/m² anno
Anno di costruzione:
1960
Riscaldamento:
Centralizzato
Tipo impianto:
A radiatori
Tipo alimentazione:
Metano

Ti interessa visionare l'immobile?

Fissa un appuntamento  Fissa un appuntamento

Richiedi informazioni

Clicca su Leggi per aprire l'informativa
* Questi campi sono obbligatori

Calcola il tuo mutuo

Semplice e senza impegno
Anticipo

( % )
Mutuo

( % )

pochi semplici passi

inserisci i tuoi dati
Questionario completato
Grazie per aver richiesto un appuntamento senza impegno con un nostro Consulente del Credito e Assicurativo.

Hai inserito correttamente tutti i dati necessari e a breve riceverai una e-mail con un link da convalidare per inviare i tuoi dati.
Affiliato
Studio Garbatella Srl
Via Nicolò da Pistoia, 34 00154 Roma (RM)
Via Nicolò da Pistoia, 34 00154 Roma (RM)
Zona: Garbatella-Circonvallazione Ostiense
Mostra su mappa
Orari: lun-ven: 9:00 - 20:00 sabato 9:00 - 18:00
Affiliato
Studio Garbatella Srl
Via Nicolò da Pistoia, 34 00154 Roma (RM)

2025 Tecnocasa Franchising S.p.A. - P. IVA 08365160152 - Via Monte Bianco 60/A 20089 Rozzano (MI). Ogni agenzia ha un proprio titolare ed è autonoma. Privacy policy | Policy utilizzo | Cookie policy